nieruchomości
Wypełnij formularz i kliknij SZUKAJ poniżej

Numer oferty
 
 
Lokalizacja
Ulica
Cena
Powierzchnia
Liczba pokoi
oferty specjalne

Notes » Zgłoś ofertę » Kalkulator opłat » O firmie » Kontakt »

Szczegóły Oferty

mieszkanie ( sprzedaż )

401/4653/OMS

Numer:
401/4653/OMS
Miasto:
WARSZAWA, WŁOCHY
Ulica:
al. Dwudziestolatków
Cena:
724 230 PLN kalkulator
Cena za mkw:
11 700 PLN mkw
Powierzchnia:
61.90 m2
Liczba pokoi:
3
Piętro:
1
Liczba pięter:
4
Stan:
do kapitalnego remontu
Rok budowy:
1973
Droga dojazdowa:
asfaltowa
Balkon:
TAK
Telefon:
TAK
Internet:
TAK
TV kablowa:
TAK
Piwnica:
TAK

Opis

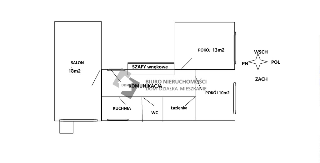
Sprzedam rozkładowe 3 pokojowe mieszkanie w Warszawie na pograniczu Ochoty i Włoch.1-sze piętro w 4-ro. piętrowym ocieplonym budynku z wielkiej płyty. Salon od zachodu ok 18m2 z balkonem+ Pokój od południa ok.13 m2 +pokój mały ok 10m2. łazienka i WC osobno. Kuchnia osobna widna.
MIESZKANIE do adaptacji wg własnego uznania.
Na podłodze klepka dębowa. Okna częściowo nowe.
Mieszkanie ma założoną Księgę Wieczystą.
Budynek w dobrym stanie , ocieplony. Śmieci wynosimy do altanki na zewnątrz. W budynku nie ma windy i schody ograniczają dostęp dla osób niepełnosprawnych. Sąsiedzi mili i spokojni.

W pobliżu szkoła podstawowa i gimnazjum, przedszkola, kościół, sklepy, apteki, całoroczny basen, lodowisko w sezonie. Dobre połączenie z Centrum Warszawy, autobusem, tramwajem, kolejką podmiejska i pociągiem,. Ścieżki rowerowe i tereny spacerowe.
Mieszkanie 3-pokojowe o powierzchni 56 m2 na 1 piętrze w 4-piętrowym bloku, głównie z płyty, bez windą z 1987 roku


Zapraszam do oglądania rodziny z dziećmi dla których przewidziano pełną infrastrukturę edukacyjno-rekreacjną.




Nasi Agenci są świetnie wyszkoleni, potrafią wsłuchać się w Twoje potrzeby, służą wiedzą i doświadczeniem by znaleźć dla Ciebie nieruchomość szytą na miarę.

Czekamy na telefon od Ciebie.
Więcej ogłoszeń www.ddm.nieruchomosci.pl
Mira Admin
Nr licencji pośrednika odpowiedzialnego zawodowo: 20199
tel: 503 753 510
email: mzakrzewska@ddm.nieruchomosci.pl

 
DDM Nieruchomości
Bernardyńska 1a/43
02-904 Warszawa
tel.: 503753510
email: admin@ddm.nieruchomosci.pl
Wyślij ofertę na e-mail

Jeśli chcesz dostać tą ofertę w e-mailu,
podaj swój adres.
 
 

Prześlij wiadomość do naszej firmy
Imię i Nazwisko 
Telefon 
E-mail 
Treść zapytania 

Wyrażam zgodę na przetwarzanie moich danych osobowych przez firmę dla celów związanych z działalnością pośrednictwa w obrocie nieruchomościami, jednocześnie potwierdzam, iż zostałem poinformowany o tym, iż będę posiadać dostęp do treści swoich danych do ich edycji lub usunięcia.